このページを印刷する
- 価格
-
5,980万円
- 間取
-
3LDK
| 所在地 | 京都府京都市左京区一乗寺松田町 |
|---|---|
| 建物名 | 左京区一乗寺松田町新築一戸建て①号地 |
| 交通 |
|
| 築年月 | 2025年10月(築4ヶ月) | 新築/中古 | 新築 |
|---|---|---|---|
| 面積 | 計測方式 | ||
| バルコニー | 向き | ||
| 建物階数 | 地上2階 | 所在階 | |
| 部屋番号/区画番号 | --- | 総戸数/総区画数 | --- |
| 建物構造 | 木造 | ||
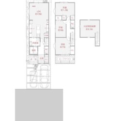
| 敷地全体面積 | 延べ床面積 | 88.55m²(26.78坪) | |
| 間取内容 | |||
| 駐車場 | 取引態様 | 仲介 | |
| 引渡/入居時期 | 相談 | 現況 | 未完成 |
| 地目 | 宅地 | 用途地域 | 第一種低層住居専 |
| 都市計画 | 市街化区域 | 地勢 | |
| 土地面積 | 110.15m²(33.32坪) | 土地面積計測方式 | 公簿 |
| 建ぺい率 | 50% | 容積率 | 80% |
| 土地権利 | 所有権 | 接道状況 | 一方 |
| 接道方向1 | 西 | 接道間口1 | 約7.6m |
| 接道種別1 | 公道 | 接道幅員1 | 約3.96m |
| 周辺環境 | ファミリーマート東大路山端店 徒歩4分 300m ローソン一乗寺宮ノ東町店 徒歩5分 400m 業務スーパー北白川店 徒歩5分 400m フレスコ修学院店 徒歩6分 450m ダックス左京山端店 徒歩5分 350m |
||
| 設備・条件 |
表題登記関連費用:110,000円(税込)、住宅省エネルギー性能証明書申請費用:110,000円(税込) 別途要
造付バルコニー:6.48㎡、大空間収納庫:14.17㎡、備蓄庫:1.62㎡
セットバック面積 約0.12㎡
建築確認番号:第2025確認建築京機構市00327号
|
||
| 学区 | |||
| 自社物 | 先物 | 状態 | 売出中 |
| 物件番号 | 4636 | 掲載期限日 | 2025年11月30日 |
| 情報登録日 | 2025年8月30日 | 情報更新日 | 2025年11月22日 |
叡山電鉄「修学院」駅から徒歩6分という利便性に加え、静かな住宅街に位置する左京区一乗寺松田町の新築一戸建ては、修学院小学校・修学院中学校やスーパー、医療機関、公園が徒歩圏内に揃い、自然と都市機能が調和した、子育てにも穏やかな暮らしにも理想的な住環境が魅力です。
<おすすめポイント>
ランドリースペースあり(ガス衣類乾燥機乾太くん)
収納力の高い大空間収納庫
全居室収納
リビングに床暖房
耐震性能【最高等級3】取得済
物件掲載内容と現況に相違がある場合は現況を優先といたします。










