このページを印刷する
- 価格
-
6,380万円
- 間取
-
2SLDK
| 所在地 | 京都府京都市北区小山西玄以町 |
|---|---|
| 建物名 | 小山西玄以町新築一戸建て |
| 交通 |
|
| 築年月 | 2026年2月 | 新築/中古 | 新築 |
|---|---|---|---|
| 面積 | 計測方式 | ||
| バルコニー | 向き | ||
| 建物階数 | 地上2階 | 所在階 | |
| 部屋番号/区画番号 | --- | 総戸数/総区画数 | --- |
| 建物構造 | 木造 | ||
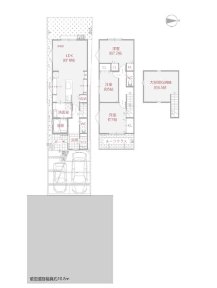
| 敷地全体面積 | 延べ床面積 | 93.56m²(28.3坪) | |
| 間取内容 | |||
| 駐車場 | 取引態様 | 仲介 | |
| 引渡/入居時期 | 相談 | 現況 | 未完成 |
| 地目 | 宅地 | 用途地域 | 第二種中高層住居専用 |
| 都市計画 | 市街化区域 | 地勢 | |
| 土地面積 | 105.78m²(31.99坪) | 土地面積計測方式 | 公簿 |
| セットバック | 無 | セットバック面積 | |
| 建ぺい率 | 60% | 容積率 | 200% |
| 土地権利 | 所有権 | 接道状況 | 一方 |
| 接道方向1 | 東 | 接道間口1 | 約5.08m |
| 接道種別1 | 公道 | 接道幅員1 | 約10.8m |
| 周辺環境 | |||
| 設備・条件 |
ルーフテラス約7.45㎡
大空間収納庫約16.55㎡
表題登記関連費用税込110,000万円・長期優良住宅認定費用税込110,000円別途要
土地仮測量面積105.24㎡
建築確認番号 確認サービス第KS125-6120-52149号
|
||
| 自社物 | 先物 | 状態 | 売出中 |
| 物件番号 | 5123 | 掲載期限日 | 2026年3月31日 |
| 情報登録日 | 2025年12月15日 | 情報更新日 | 2025年12月15日 |
◆地下鉄烏丸線「北大路」駅徒歩12分の東向き新築一戸建て!前面道路幅員約10.8m☆
◆認定長期優良住宅、建物2026年2月完成予定!
◆床暖房(LD)、駐車2台可
物件掲載内容と現況に相違がある場合は現況を優先といたします。
物件周辺マップ
Loading...
ご注意
- 物件によっては正確な位置を示していない場合がございます。
- 現況が表示された内容と異なる場合は現況優先といたします。
- 表示されてる地図はGoogle社より提供されてるデータに基づいたものであり、表示内容についての責任は負いかねます。




