このページを印刷する
- 価格
-
3,580万円
- 間取
-
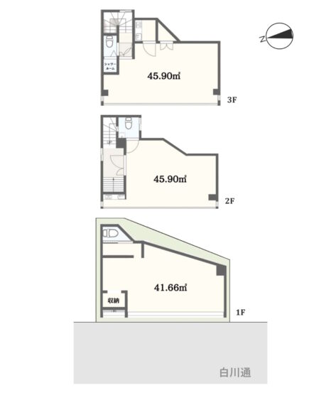
3R
| 所在地 | 京都府京都市左京区鹿ケ谷西寺ノ前町 |
|---|---|
| 建物名 | 左京区鹿ケ谷西寺ノ前町売店舗事務所 |
| 交通 |
|
| 築年月 | 1987年5月(築38年11ヶ月) | 新築/中古 | 中古 |
|---|---|---|---|
| 面積 | 計測方式 | ||
| バルコニー | 向き | ||
| 建物階数 | 地上3階 | 所在階 | |
| 部屋番号/区画番号 | --- | 総戸数/総区画数 | --- |
| 建物構造 | 鉄骨造 | ||
| 敷地全体面積 | 延べ床面積 | 133.46m²(40.37坪) | |
| 間取内容 | |||
| 駐車場 | 取引態様 | 仲介 | |
| 引渡/入居時期 | 相談 | 現況 | 空家 |
| 地目 | 宅地 | 用途地域 | 近隣商業 |
| 土地面積 | 58m²(17.54坪) | 土地面積計測方式 | 公簿 |
| 建ぺい率 | 80% | 容積率 | 300% |
| 土地権利 | 所有権 | 接道状況 | 一方 |
| 接道方向1 | 西 | 接道間口1 | 約8.2m |
| 接道種別1 | 公道 | 接道幅員1 | 約20m |
| 周辺環境 | |||
| 設備・条件 |
※現状有姿
|
||
| 自社物 | 先物 | 状態 | 売出中 |
| 物件番号 | 5605 | 掲載期限日 | 2026年8月31日 |
| 情報登録日 | 2026年4月9日 | 情報更新日 | 2026年4月9日 |
◆市バス「錦林車庫前」停徒歩1分
◆近隣商業地域、白川通り面す(道路幅員約20m)
◆店舗・事務所適す、収益物件としてもご検討いただけます。
◆鉄骨造3階建て、建物延べ床面積約40.37坪
物件掲載内容と現況に相違がある場合は現況を優先といたします。

















